Eladó Alsópetény község zsák utcájában, kiváló állapotú családi ház.
22 órája, Eladó, bérelhető telek - Alsópetény Azonosító: 220512
Leírás:
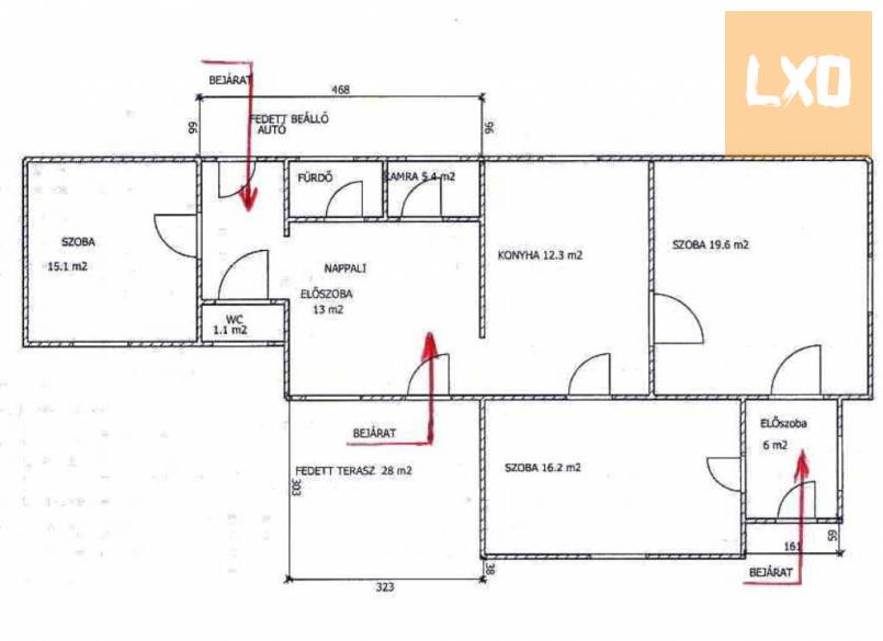
Eladásra kínálom a Nógrád vármegyei Alsópetény csendes, közkedvelt utcájában, közel a természethez, gyönyörűen gondozott 3327 m2-s telken, Bruttó 134 m2-s, 4 szobás remek állapotban lévő egy szintes családi házat, 28 m2-e s fedett terasszal.
Az udvarban a házhoz épített 28 m2-s fedett autó beálló, 20 m2-s téglaépítésű tároló helyiség, állattartásra elkülöníthető gazdasági épület valamint a nagy teraszról nyíló boltíves borospince lett kialakítva.
Az ingatlanba 3 bejáraton keresztül juthatunk be, ezért lehetőség nyílik a családi ház elrendezésének módosítására.
A ház mostani állapota szerint 3 világos és tágas szoba (19.6 m3, 16.2 m2,15.1 m2), 13 m2-s nappali-előszobával, étkezős konyha-kamrával, előszoba (6 m2), közlekedő, igényesen kialakított fürdőszoba (4.6 m2) valamint külön toalett mellékhelyiséggel rendelkezik (1.1 m2).
Tulajdonos az ingatlant az elmúlt években folyamatosan karbantartotta, a ház további felújításokon ment keresztül, korszerű műanyag hőszigetelt nyílászárók, kiváló magas fényű burkolatok, étkező garnitúra valamint beépített konyhagépek lettek kicserélve.
2025-ben az épület helyiségei komplett festésen ment keresztül.
Közművek: víz, villany, gáz, csatorna.
A tetőszerkezet zsindelyfedésű, kiváló állapotú.
Az elmúlt pár hete a padlástérben a teljes födémre, 32 cm-es új födémszigetelést (fólia, gyapot) kapott, ezáltal az ingatlan költséghatékonyabbá vált.
Az ingatlan fűtése, zárt égés terű Westen kondenzációs kazánról működik, radiátoros hő leadással.
Alternatív megoldásként egy épített cserépkályha is rendelkezésre áll, amely két szobát fűt be.
A vételár részét képezi beépített konyha, beépített hűtő fagyasztóval, sütővel, főző lappal, szag elszívóval és a mosogatógéppel.
A nagy telek ápolt és rendezett, állattartásra vagy gazdálkodásra, de befektetésként is alkalmas.
A házat ajánlom családoknak, akik igénybe vehetik az állami támogatásokat is (Babaváró, CSOK és hitel) is!
Vételára: 71. 900. 000.- Ft.
Az udvarban a házhoz épített 28 m2-s fedett autó beálló, 20 m2-s téglaépítésű tároló helyiség, állattartásra elkülöníthető gazdasági épület valamint a nagy teraszról nyíló boltíves borospince lett kialakítva.
Az ingatlanba 3 bejáraton keresztül juthatunk be, ezért lehetőség nyílik a családi ház elrendezésének módosítására.
A ház mostani állapota szerint 3 világos és tágas szoba (19.6 m3, 16.2 m2,15.1 m2), 13 m2-s nappali-előszobával, étkezős konyha-kamrával, előszoba (6 m2), közlekedő, igényesen kialakított fürdőszoba (4.6 m2) valamint külön toalett mellékhelyiséggel rendelkezik (1.1 m2).
Tulajdonos az ingatlant az elmúlt években folyamatosan karbantartotta, a ház további felújításokon ment keresztül, korszerű műanyag hőszigetelt nyílászárók, kiváló magas fényű burkolatok, étkező garnitúra valamint beépített konyhagépek lettek kicserélve.
2025-ben az épület helyiségei komplett festésen ment keresztül.
Közművek: víz, villany, gáz, csatorna.
A tetőszerkezet zsindelyfedésű, kiváló állapotú.
Az elmúlt pár hete a padlástérben a teljes födémre, 32 cm-es új födémszigetelést (fólia, gyapot) kapott, ezáltal az ingatlan költséghatékonyabbá vált.
Az ingatlan fűtése, zárt égés terű Westen kondenzációs kazánról működik, radiátoros hő leadással.
Alternatív megoldásként egy épített cserépkályha is rendelkezésre áll, amely két szobát fűt be.
A vételár részét képezi beépített konyha, beépített hűtő fagyasztóval, sütővel, főző lappal, szag elszívóval és a mosogatógéppel.
A nagy telek ápolt és rendezett, állattartásra vagy gazdálkodásra, de befektetésként is alkalmas.
A házat ajánlom családoknak, akik igénybe vehetik az állami támogatásokat is (Babaváró, CSOK és hitel) is!
Vételára: 71. 900. 000.- Ft.
Ár:
71 900 000 Ft
Település: Alsópetény
Kategória: Eladó, bérelhető telek
Jelentem kifogásolhatóként
Kapcsolatfelvétel a hirdetővel
Tippek vásárláshoz
Próbáld ki, nézd meg személyesen is.
Ellenőrizd az árat.
Kérdezz az eladótól sokat.
Kérj több fényképet.