Kisnémedi csendes utcájában, családi ház eladó!
5 napja, Eladó házak, lakások - Kisnémedi Azonosító: 217785
Leírás:
Kisnémedi csendes utcájában, családi ház eladó!
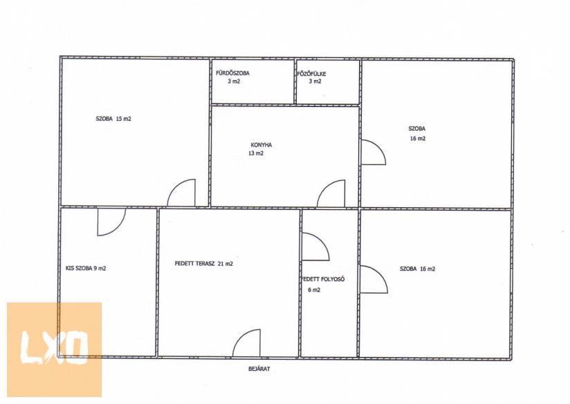
Váctól 17 km-re Kisnémediben a festői szépségű Pest megyei településen, a központ közelében 1300 m2-es belterületi telken, nettó 81 m2 hasznos alapterületű, erősen felújításra szoruló, 3 és fél szobás családi kertes ház eladó!
A családi ház vegyes falazatú (kő, tégla, vályog), fa födémes cserépborítással rendelkezik.
Az öröklés után a tulajdonos elkezdte felújítani a házat, az ingatlanban egy szoba kivételével a teljes villanyhálózat át lett vezetékezve.
Az utcafronton található egyik szoba még nem lett felújítva, repedések láthatók, kompletten felújításra szorul.
Fűtése gáz konvektorokkal megoldott, de kéménye van az ingatlannak és régebben kályhával fűtötték a helyiségeket.
Az ablakok nagy része műanyag nyílászárókra lett cserélve.
A házhoz tartozó hatalmas beépített teraszból (18-20 m2) egy gyönyörű nappali könnyű szerrel kialakítható.
Parkolási lehetőség önálló, saját kb. 16 m2-es garázsban lehetséges.
A locsoláshoz ásott kút áll rendelkezésre a kertben.
Az ingatlan csendes, nyugodt vidéki életre vágyóknak kiváló lehetőséget nyújt, használható állandó lakhatásra vagy üdülési célokra is a felújítás után!
Kisnémedi község ellátottsága nagyon jó, hiszen a közelben megtalálunk mindent, amire a mindennapi életben szükség van.
ABC, posta, orvosi, gyermekorvosi rendelő, patika, kifőzde, pizzéria.
Az utca aszfaltburkolatát felszedték, helyette az utat és a járdákat térkő burkolattal látták el, a település többi utcájához hasonlóan.
A remek közbiztonságnak örvendő település dinamikusan fejlődik, a közterületei térkövezettek, az intézményeit, szolgáltató épületeit, parkjait gyönyörűen karbantartják, felújítják.
Irányára: 30. 000. 000.- Ft
További információért és a megtekintéssel kapcsolatban, várom megtisztelő hívását!
Tel: +36705581160
Váctól 17 km-re Kisnémediben a festői szépségű Pest megyei településen, a központ közelében 1300 m2-es belterületi telken, nettó 81 m2 hasznos alapterületű, erősen felújításra szoruló, 3 és fél szobás családi kertes ház eladó!
A családi ház vegyes falazatú (kő, tégla, vályog), fa födémes cserépborítással rendelkezik.
Az öröklés után a tulajdonos elkezdte felújítani a házat, az ingatlanban egy szoba kivételével a teljes villanyhálózat át lett vezetékezve.
Az utcafronton található egyik szoba még nem lett felújítva, repedések láthatók, kompletten felújításra szorul.
Fűtése gáz konvektorokkal megoldott, de kéménye van az ingatlannak és régebben kályhával fűtötték a helyiségeket.
Az ablakok nagy része műanyag nyílászárókra lett cserélve.
A házhoz tartozó hatalmas beépített teraszból (18-20 m2) egy gyönyörű nappali könnyű szerrel kialakítható.
Parkolási lehetőség önálló, saját kb. 16 m2-es garázsban lehetséges.
A locsoláshoz ásott kút áll rendelkezésre a kertben.
Az ingatlan csendes, nyugodt vidéki életre vágyóknak kiváló lehetőséget nyújt, használható állandó lakhatásra vagy üdülési célokra is a felújítás után!
Kisnémedi község ellátottsága nagyon jó, hiszen a közelben megtalálunk mindent, amire a mindennapi életben szükség van.
ABC, posta, orvosi, gyermekorvosi rendelő, patika, kifőzde, pizzéria.
Az utca aszfaltburkolatát felszedték, helyette az utat és a járdákat térkő burkolattal látták el, a település többi utcájához hasonlóan.
A remek közbiztonságnak örvendő település dinamikusan fejlődik, a közterületei térkövezettek, az intézményeit, szolgáltató épületeit, parkjait gyönyörűen karbantartják, felújítják.
Irányára: 30. 000. 000.- Ft
További információért és a megtekintéssel kapcsolatban, várom megtisztelő hívását!
Tel: +36705581160
Ár:
30 000 000 Ft
Település: Kisnémedi
Kategória: Eladó házak, lakások
Jelentem kifogásolhatóként
Kapcsolatfelvétel a hirdetővel
Tippek vásárláshoz
Próbáld ki, nézd meg személyesen is.
Ellenőrizd az árat.
Kérdezz az eladótól sokat.
Kérj több fényképet.